|
|
|
四川大剧院概念设计方案公示投票
|
为落实成都市对天府广场的有关规划,经成都市土地管理委员会第二十一次会议、第二十二次会议讨论,同时报经四川省人民政府,并由省政府第85次常务会议研究通过,决定实施锦城艺术宫搬迁改造工程。搬迁新址为成都市人民中路1号附2号(原电信钟楼),落成后更名为四川大剧院。
四川大剧院征集方案以委托方式进行,共征集六套设计方案。本着稳妥慎重的态度,建设指挥部于2011年11月24日专门委托成都市城市规划协会组织召开《四川大剧院概念方案》专家技术咨询会,对全部方案进行评审,根据专家评审会意见对方案调整深化后,最终筛选出两套方案,并于2012年1月5日送成都市城乡规划委员会评审。
根据该次成都市城乡规划委员会的评审意见,建设指挥部积极组织各设计单位重新对设计方案进行深化修改,并广泛征求建筑设计、美学,以及成都市规划局部分专家意见,再次形成深化方案,经文化厅审查后送成都市城乡规划委员会第二次评审。经成都市城乡建设规划委员会再次评审,确定方案一为入选方案,方案二为备选方案。
2012年4月在省政府四川大剧院概念方案专题会议上,设计单位对方案一和方案二做了设计说明,会议建议将两个方案面向社会进行公示。
现公示如下:
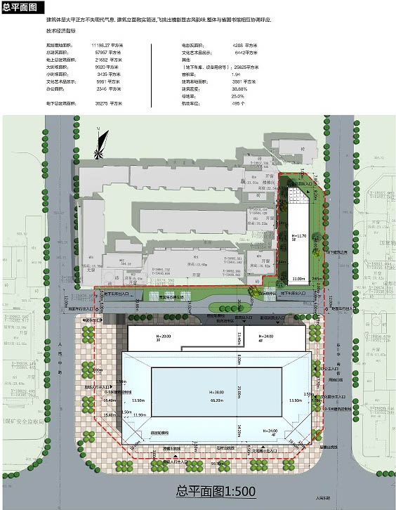
方案一






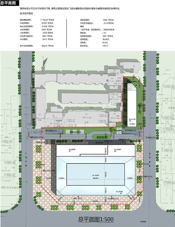
方案二






·发表评论
·网络投票 |
|
[更多评论]
[更多推荐]
|
|